
2026-02-24
介護のリフォーム

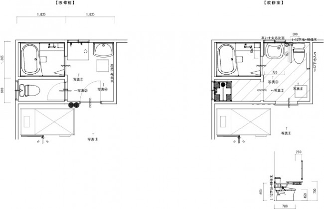
① 水回りの配置換え(脱衣所とトイレを一体化)する事で動線を最短化、動作の単純化、介助負担の軽減を図る
トイレと洗濯機置き場の配置替えを行い、単純な動線とする。スペースが生まれるため、便器への斜めのアプローチが可能となります。そのため介助負担が軽減できます。
(今回は木造住宅で床下に多少のスペースがあり排水勾配が取れたため、配置換えが可能となりました)
洗面化粧台を車いす対応洗面化粧台に交換し、自身でも洗顔などが出来るようにする
Before
After
Before
After
Before
After
② 開き戸から引き戸へ変更(スペース確保、動作の容易性確保)
一体化することでスペースは確保できますが、内開きを残すとスペースが減ってしまう事と動作の容易性が無いため、扉を引き戸に交換
上吊り式を採用し、床レールをなくして段差解消
本人や介助者も使いやすい高さに把手を設置
Before
After
③ 段差解消
脱衣所入口のフラット化
敷居を撤去しストレスなく通行が可能
④手すりの設置
移乗時の動作も軽介助で行えるよう、手すりを取付けております。
片側は空間+移乗箇所となるため、跳ね上げ式の手すりとし、移乗動作を容易にする事が可能
介護保険を活用した住宅改修
本事例では、介護保険の住宅改修制度(上限20万円)を活用しました。
対象工事:
手すり設置
段差解消
扉の交換(引き戸化)
※その他の工事は保険適用外ですが、適用範囲を最大限活用するプランをご提案しました。
申請書類や事前申請が必要なため、ケアマネジャー様と連携し申請サポートまで対応いたします。